01_v

kanceláře městského odboru

fáze: studie, prováděcí dokumentace

lokalita: Cheb

rok: 2023

 

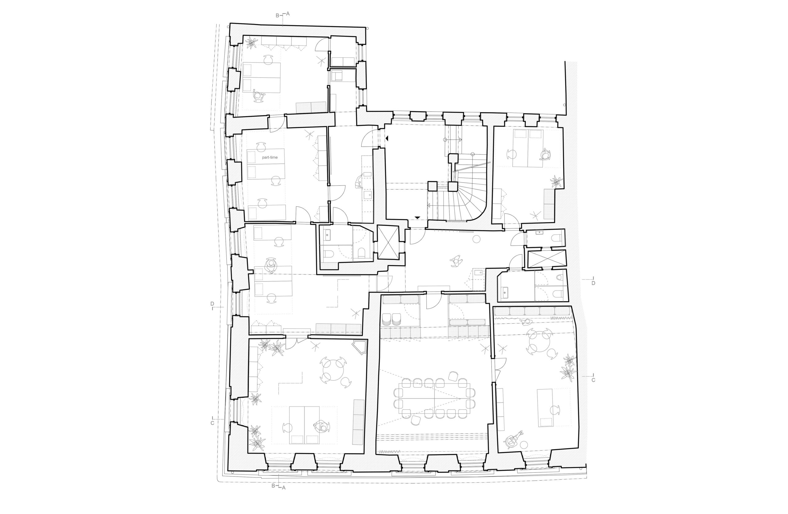
Návrh přetváří 3.NP památkově chráněného domu na náměstí Jiřího z Poděbrad v Chebu na kanceláře odboru Projektového managementu. Veškeré zásahy se v maximální možné míře přizpůsobují historickému objektu a respektují jeho členění i nepravidelnosti. Podlahy, kazetové dveře a další důležité prvky interiéru jsou repasovány. Je navrženo nové hygienické zázemí reflektující potřeby provozu kanceláří. V prostoru vyčleněném pro zasedací místnost, do nějž musela být ze statických důvodů vložena zpevňující ocelová konstrukce, je navžena vestavná skříň s úložnými prostory, která toto vizuálně rušivé opatření obaluje a skrývá.

02_v
Layout1
JZP_03_v
Layout1
JZP_04_v 2
Layout1
JZP_axo
Přejít nahoru