01_hlavní na šířku stránky

městská knihovna Boskovice

fáze: soutěžní návrh

lokalita: Boskovice

team: David Poloch, Magdaléna Buza, Martin Surovec

rok: 2025

 

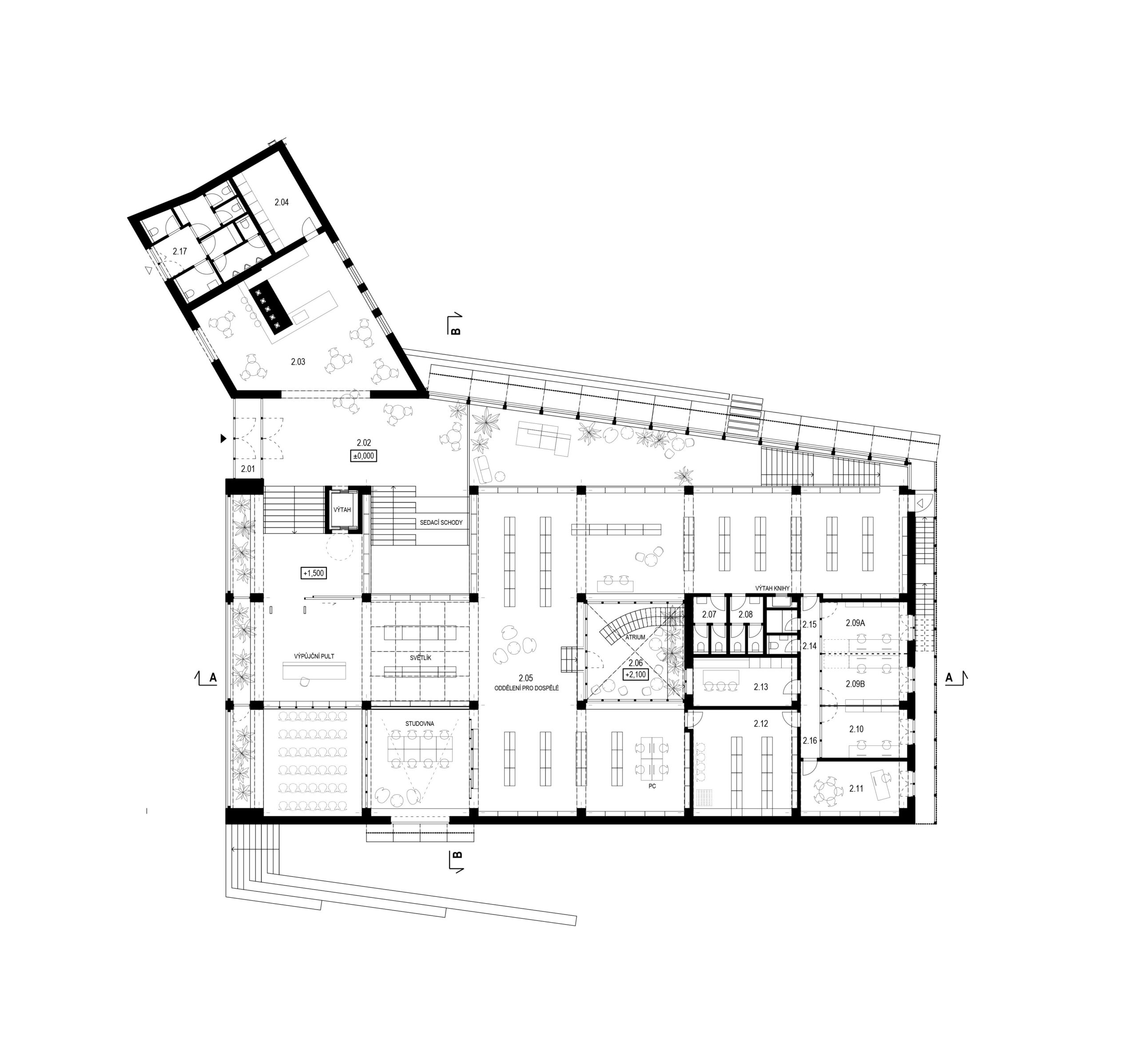
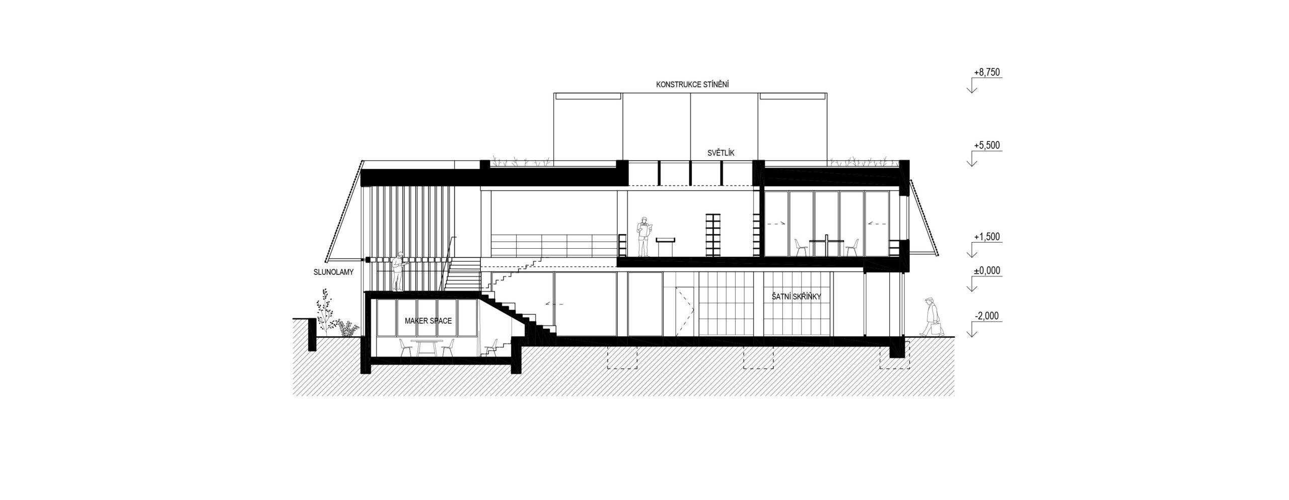
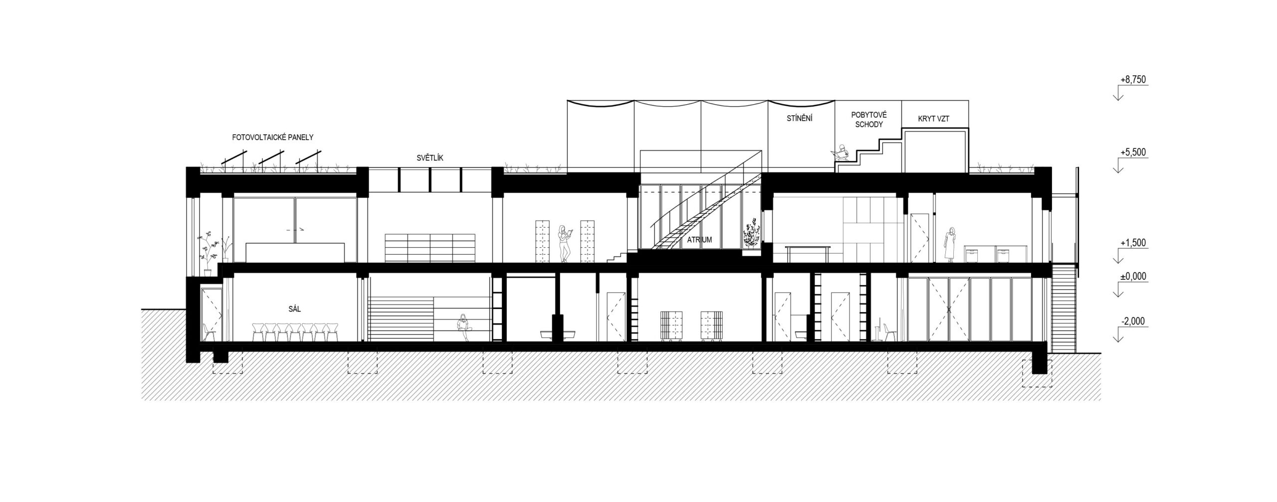
Nová městská knihovna pro Boskovice je situována do stávajícího objektu z 80. let 20. století sousedícího s frekventovanou pěší trasou směřující na hlavní náměstí. V návrhu využíváme skeletového systému budovy, která donedávna sloužila jako prodejna zahradní techniky. Stávající obálku budovy nahrazujeme v přízemí prosklenou fasádou zatímco v patře zachováváme pevnější hmotu s okny. Tři rozdílné úrovně – přízemí s dětským oddělením a přednáškovým sálem, patro s oddělením pro dospělé a administrativní částí a meziúroveň s kavárnou a vstupem z pěší uličky vedoucí z náměstí – spojujeme v centrálním uzlu, na nějž navazuje dvoupodlažní část vzniklá pootočením nové severní fasády. Převýšený prostor umožňuje přehledně vnímat jednotlivé části knihovny a dává vyniknout konstrukčnímu systému budovy. 

02_pohled ze dvora
BOS_1NP_200
03_pohled z ulice
BOS_2NP_200
04_vchod
řez příčný
06_interiér 1_SVĚTLEJŠÍ
řez podélný
06_interiér 2_SVĚTLEJŠÍ
axonometrie fin
Přejít nahoru