rekonstrukce domu ve vesnické památkové zóně
fáze: studie, spolupráce na DSP
lokalita: vesnická památková zóna, Jičínsko
rok: 2023
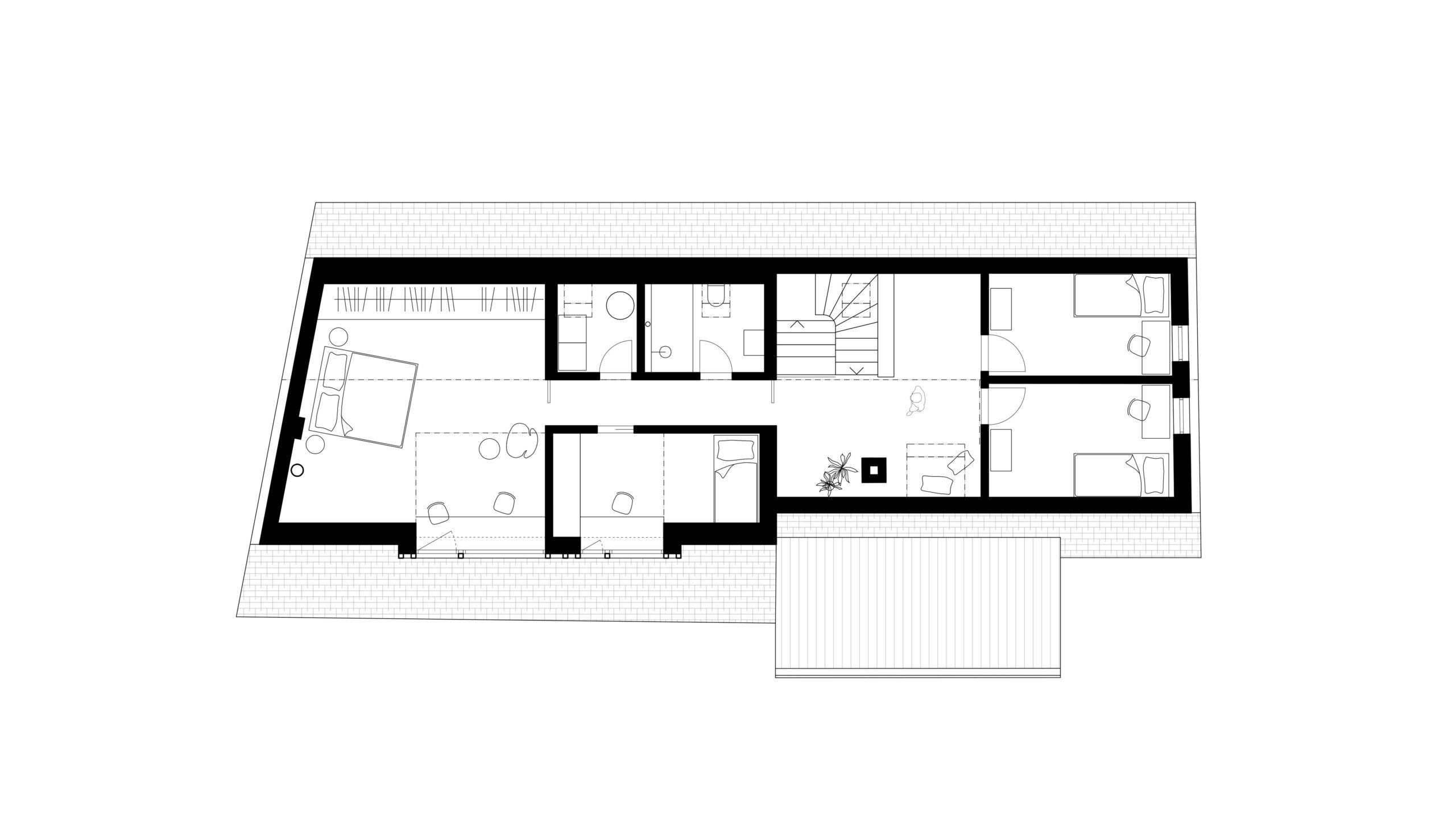
Rekonstrukce vesnického stavení reflektuje potřeby početné rodiny a zároveň reaguje na kontext vesnické památkové zóny, v jejímž středu se nachází. Ze strany návsi je tak v maximální možné míře zachován původní ráz domu, aby byly dodrženy požadavky památkové péče. Veškeré větší zásahy, které pomáhají využít podkroví pro účely obývání a propojit světnici v přízemí s exteriérem, jsou směřovány na jižní fasádu orientovanou do zahrady. Zde je hlavní hmota domu doplněna dvěma objemy, které tvoří zimní zahradu se zápražím a vikýř zlepšující využitelnost ložnice a dětského pokoje. Chybějící kontakt hlavního obytného prostoru se zahradou je zprostředkován probouráním otvoru vedoucího do zimní zahrady, která na exteriér přímo navazuje. Z tohoto zásahu benefituje taktéž kuchyně, která získává více denního světla. V podkroví je navržena ložnice rodičů a tři samostatné dětské pokoje. Vzhledem k jejich omezené velikosti (dané nutností dodržet výšku hřebene a sklon střechy) je v podkroví navržena i společná herna, která volně navazuje na schodiště vedoucí z přízemí. Štítová stěna v podkroví poznamenaná nevhodnými úpravami v minulosti je nahrazena novou konstrukcí, která je současnou interpretací členěných štítů typických pro lokalitu.